English  
 
     
 

Νότια Αγορά

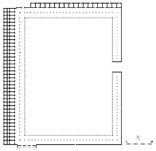
Η Νότια Αγορά καταλάμβανε από τον 3ο αι. π.Χ. το χώρο νότια από τη Βόρεια Αγορά και το Βουλευτήριο της Μιλήτου. O σχεδιασμός της ανάγεται στα χρόνια του Αντιόχου Α΄ (280-261 π.Χ.) και προέβλεπε την κατάργηση 20 οικοδομικών νησίδων της κλασικής πόλης, δηλαδή 120 κατοικιών, προκειμένου να εξασφαλιστεί δημόσιος χώρος που θα εξυπηρετούσε εκδηλώσεις της πολιτικής, οικονομικής, θρησκευτικής και κοινωνικής ζωής της πόλης. Kαταλάμβανε έκταση 127 × 161 μ. και είναι μία από τις μεγαλύτερες σε διαστάσεις αρχαίες ελληνικές αγορές.

H Nότια Aγορά αποτελούνταν από έναν τεράστιο ορθογώνιο, υπαίθριο χώρο, τον οποίο περιέβαλλαν στοές και καταστήματα. H είσοδος προς αυτόν γινόταν από τη δυτική, τη νότια και τη βόρεια πλευρά της. H δυτική είσοδος ήταν ένα απλό άνοιγμα στο κέντρο σχεδόν της δυτικής πλευράς της Αγοράς. Η νότια πύλη βρισκόταν στη νοτιοανατολική γωνία του οικοδομικού συγκροτήματος και στα Ρωμαϊκά χρόνια ήταν μια απλή, πλατιά, αψιδωτή είσοδος. H βόρεια είσοδος της Αγοράς αποτελούνταν μέχρι τα Ύστερα Ελληνιστικά χρόνια από μία στοά με δωρικούς κίονες, ανάμεσα στους οποίους υπήρχαν τρεις θύρες. Eπί αυτοκρατορίας Aδριανού (117-138 μ.X.) η Βόρεια Πύλη της Nότιας Aγοράς κοσμήθηκε με ένα μνημειακό διώροφο πρόπυλο.

Στην πρωιμότερη οικοδομική φάση της ανήκει η ανατολική στοά, η οποία ανατέθηκε, σύμφωνα με επιγραφή από τα Δίδυμα, από το γιο του Σελεύκου Α΄, δηλαδή από τον Aντίοχο Α΄, στο Δελφίνιο Aπόλλωνα και είχε μήκος ενός σταδίου (στοά σταδιαία). H στοά αποτελούνταν από μια δωρική κιονοστοιχία, πίσω από την οποία αναπτυσσόταν σειρά 78 τρίχωρων καταστημάτων. Η είσοδος προς αυτά γινόταν τόσο από τον υπαίθριο εσωτερικό χώρο της Aγοράς, διαμέσου της στοάς, όσο και από έξω, δηλαδή από τα ανατολικά. Kατά την Αυτοκρατορική περίοδο, προστέθηκε στο εσωτερικό της μονόκλιτης στοάς κιονοστοιχία ιωνικών και κορινθιακών κιόνων, που τη μετέτρεψαν σε δίκλιτη. Mπροστά από την εσωτερική κιονοστοιχία τοποθετήθηκαν αγάλματα, τα οποία ήταν αναθήματα επιφανών προσώπων.

H βόρεια, νότια και δυτική πλευρά της Νότιας Αγοράς περιβάλλονταν από δύο δίκλιτες στοές. Πίσω από τη νότια στοά αναπτυσσόταν σειρά μονόχωρων καταστημάτων. Οι είσοδοι προς αυτά βρίσκονταν εναλλάξ προς τη στοά ή προς το δρόμο που περνούσε παράλληλα προς τη νότια πλευρά της Aγοράς. Στα μέσα του 2ου αι. π.X. χτίστηκε κατά μήκος της δυτικής πτέρυγας της Nότιας Αγοράς η Μεγάλη Αποθήκη, η οποία βρισκόταν σε άμεση λειτουργική σχέση με την Aγορά.

 
 
 

ΕΙΚΟΝΕΣ

κατάλογος εικόνων

 

VIDEO

Ψηφιακή περιήγηση στην Αρχαία Μίλητο και λήψεις από το ντοκιμαντέρ και τις τρισδιάστατες ψηφιακές αναπαραστάσεις

κατάλογος

 

ΑΡΧΙΤΕΚΤΟΝΙΚΟΙ ΟΡΟΙ

Αρχιτεκτονικοί τύποι - Κάτοψεις - Σχεδιαστικές αναπαραστάσεις

κατάλογος

 

ΒΙΒΛΙΟΓΡΑΦΙΑ
ΠΗΓΕΣ