English  
 
     
 

Νυμφαίο

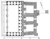
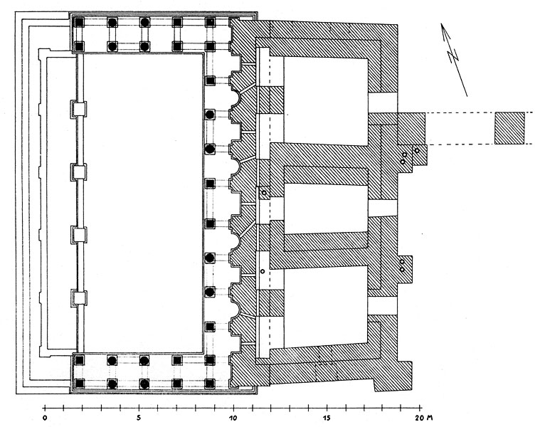
Το Νυμφαίο της Μιλήτου αποτελεί ένα από τα πλέον εντυπωσιακά κρηναία οικοδομήματα της Μικράς Ασίας. Βρίσκεται στο δυτικό τμήμα της πόλης, ανάμεσα στη Νότια Αγορά (στα νότια) και στο Γυμνάσιο του Ευδήμου και τις Θέρμες του Capito (στα βόρεια). Ακολουθεί τον τύπο των νυμφαίων με πολυώροφη θεατρόσχημη πρόσοψη, μνημειακά διαμορφωμένη, που διακοσμείται όπως η πρόσοψη της σκηνής ενός θεάτρου (scaenae fronts). Διαρθρώνεται σε τρεις ορόφους και ο τοίχος της πρόσοψής του κοσμείται με κίονες, κόγχες και ναΐσκους (aediculae), εντός των οποίων ήταν τοποθετημένα αγάλματα. Ιδιαίτερο γνώρισμα του συγκεκριμένου τύπου νυμφαίων αποτελεί άλλωστε και η ύπαρξη δύο δεξαμενών, μίας συγκέντρωσης νερού σε υψηλότερο επίπεδο που τροφοδοτούσε και μίας άντλησης νερού που βρισκόταν σε χαμηλότερο επίπεδο.

Το οικοδόμημα πρέπει να ήταν ιδιαίτερα επιβλητικό, όπως φαίνεται και από τις διαστάσεις του. Η πρόσοψη έχει μήκος 20,25 μ., διαρθρώνεται σε τρεις ορόφους και οι κίονές της είναι κορινθιακού ρυθμού. Το μνημείο σχηματίζει Π με την ύπαρξη δύο πτερύγων που προβάλλονται μπροστά. Οι δύο αυτές προβολές ήταν διώροφες, δηλαδή χαμηλότερες κατά έναν όροφο από την πρόσοψη, και ανοικτές (δεν έκλειναν με τοίχο στο πίσω μέρος τους). Στην πρόσοψη του Νυμφαίου ανοίγονταν κόγχες και ναΐσκοι που επιστέφονταν με έλικες ή αετώματα. Η εναλλαγή των κογχών και των ναΐσκων ήταν διαμορφωμένη κατά τέτοιο τρόπο ώστε πάνω από κάθε ναΐσκο να αντιστοιχεί μία κόγχη και πάνω από κάθε κόγχη να δημιουργείται ένας ναΐσκος. Αυτή η λύση, αν και έχει κάποια προβλήματα αστάθειας, δίνει εντυπωσιακό διακοσμητικό ύφος στην αρχιτεκτονική του μνημείου. Η ίδια περίπου διάρθρωση της επιφάνειας της πρόσοψης απαντά και στη Βιβλιοθήκη του Κέλσου στην Έφεσο.

Μέσα στις κόγχες και τους ναΐσκους ήταν στημένα τα αγάλματα που κοσμούσαν το μνημείο. Στον κάτω όροφο οι μορφές, τοποθετημένες σε συνολικά εννέα κόγχες, είχαν εκτός από διακοσμητικό και χρηστικό χαρακτήρα, καθώς λειτουργούσαν ως κρηναία αγάλματα ρίχνοντας το νερό στη μεγάλη δεξαμενή συγκέντρωσης νερού (διαστάσεων 16,15 × 6,39 μ.) που βρισκόταν μπροστά τους. Μπροστά από αυτήν υπήρχε μια μικρότερη δεξαμενή (15,6 × 1,6 μ.), από την οποία ο κόσμος αντλούσε το νερό. Τα γλυπτά που βρέθηκαν κοντά στην κύρια δεξαμενή σχετίστηκαν με το διάκοσμο του Nυμφαίου και πρέπει να ήταν τοποθετημένα στις κόγχες και στους ναΐσκους της πρόσοψης. Πρόκειται για αγάλματα μεγέθους μικρότερου του φυσικού, που απεικόνιζαν μορφές θεών και ημίθεων. Υπολογίζεται ότι υπήρχαν συνολικά τουλάχιστον 27 μορφές που τοποθετούνταν στους 5 ναΐσκους και στις 4 κόγχες κάθε ορόφου. Η αποκατάσταση του διακόσμου και η θέση των αγαλμάτων είναι καθαρά υποθετικές, ωστόσο το εικονογραφικό πρόγραμμα πρέπει να περιελάμβανε το τοπικό πάνθεο της Μιλήτου.

Στον κάτω όροφο θα ήταν τοποθετημένη η μορφή που απεικόνιζε μάλλον το θεό Ποσειδώνα. Δεξιά και αριστερά του θεού ίσως να βρίσκονταν μορφές που σχετίζονται με τη θάλασσα, Νύμφη με αγγείο και Νύμφη με κουπί, και δίπλα σε αυτές μορφές που κρατούσαν πιθανότατα το κέρας και παρείχαν την ευλογία για ευμάρεια και γονιμότητα. Τα αγάλματα αυτά λειτουργούσαν ως κρηναία, ρίχνοντας το νερό στη μεγάλη δεξαμενή μπροστά τους.

Υπάρχουν και μορφές οι οποίες φαίνεται να σχηματίζουν ζεύγη και πιθανώς να ήταν τοποθετημένες στις προβολές του Νυμφαίου. Πρόκειται για δύο γυναικείες φιγούρες με χιτώνα που αφήνει γυμνό τον ώμο και ίσως παριστάνουν τις θεές Άρτεμη και Αθηνά, καθώς και δύο γυμνές ανδρικές μορφές, που πιθανόν να αποτελούν πορτρέτα των χορηγών του οικοδομήματος, του Ούλπιου Τραϊανού, πατέρα του αυτοκράτορα Τραϊανού (98-117), και του Ρωμαίου ανθυπάτου της Ασίας Λούκιου Εγνάτιου Βίκτορα Λολλιανού, που έδρασε περίπου στα μέσα του 3ου αιώνα.

Στο δεύτερο όροφο πρέπει να στεκόταν ο ένθρονος Δίας, έχοντας στα δεξιά του την Ήρα και την Αθηνά και ανάμεσά τους τον Ηρακλή και τον Ασκληπιό, ενώ στα αριστερά του τη Λητώ και την Άρτεμη και μεταξύ τους τον Απόλλωνα και το Διόνυσο. Στην κεντρική κόγχη του τρίτου ορόφου ίσως να ήταν τοποθετημένος ο Άτλαντας, κρατώντας τη σφαίρα του κόσμου, πλαισιωμένος από ένα Σάτυρο, καθώς και γυναικείες και ανδρικές μορφές από τις οποίες σώζονται ελάχιστα θραύσματα.

Το επιστύλιο του κατώτερου ορόφου φέρει λατινική επιγραφή, η οποία αναφέρει ότι το Νυμφαίο οικοδομήθηκε από το Μάρκο Ούλπιο Τραϊανό, πατέρα του αυτοκράτορα Τραϊανού (98-117), ο οποίος ανάμεσα στα άλλα αξιώματά του ήταν και ανθύπατος (proconsul) της επαρχίας της Ασίας επί αυτοκράτορα Τίτου (79-81). Η επιγραφή εντούτοις πρέπει να χαράχτηκε στα χρόνια του Τραϊανού. Φαίνεται όμως ότι οι δύο πρώτοι όροφοι είχαν ήδη ανεγερθεί μέχρι τα τέλη της δυναστείας των Φλαβίων (69-96). Μια άλλη επιγραφή στο επιστύλιο του 3ου ορόφου είναι γραμμένη στην ελληνική γλώσσα και αναφέρεται στον εξωραϊσμό του Νυμφαίου από τον αυτοκράτορα Γορδιανό Γ΄ (238-244) στα χρόνια μεταξύ του 241 και 244. Ωστόσο, υπάρχουν αμφιβολίες για το αν αυτός ο εξωραϊσμός περιελάμβανε και το σύνολο των αγαλμάτων που κοσμούσαν το μνημείο.

Σήμερα το οικοδόμημα διατηρείται σε καλή κατάσταση. Μεγάλο μέρος από μαρμάρινα αρχιτεκτονικά μέλη του Νυμφαίου αποκαλύφθηκαν κατά τις ανασκαφές, τα περισσότερα από τα οποία βρίσκονται ακόμη στο χώρο. Από την πλούσια διακοσμημένη πρόσοψη του πρώτου ορόφου διατηρούνται η κεντρική και δύο από τις τέσσερις συνεχόμενες τοξωτές κόγχες στα νότια. Όσον αφορά το γλυπτό διάκοσμο του μνημείου τα περισσότερα από τα αγάλματα βρίσκονται στη Μίλητο, ενώ κάποια από αυτά έχουν μεταφερθεί στην Κωνσταντινούπολη και στο Βερολίνο.

 
 
 

ΕΙΚΟΝΕΣ

κατάλογος εικόνων

 

VIDEO

Ψηφιακή περιήγηση στην Αρχαία Μίλητο και λήψεις από το ντοκιμαντέρ και τις τρισδιάστατες ψηφιακές αναπαραστάσεις

κατάλογος

 

ΑΡΧΙΤΕΚΤΟΝΙΚΟΙ ΟΡΟΙ

Αρχιτεκτονικοί τύποι - Κάτοψεις - Σχεδιαστικές αναπαραστάσεις

κατάλογος

 

ΒΙΒΛΙΟΓΡΑΦΙΑ
ΠΗΓΕΣ